九闕府(新中式)介紹
Introduce
設計師詳情
Design details
楊磊
楊磊
性別:
畢業學院:
重大建築係
從業時間:
15年
現任職務:
設計總監
聯係方式:
門店:
南坪店
設計類別:
公裝設計和家裝設計
設計風格:
現代美式、美式輕奢、歐式風格、新中式、現代時尚等等
個人感悟:
生活是創意的來源,創意源於文化,創意源於自己
設計定位:
設計理念:
以有限空間、設計無限可能
作品榮譽:
龍湖紫雲台、約克郡、龍湖酈江、珊瑚水岸、恒大麓山湖、國盛園墅、逸翠莊園、同景國際城雍華府、華僑城、北大資源蘭亭序、南坪萬達咖啡館等
立即谘詢
九闕府(新中式)
0
樓盤地址:融創九闕府
戶型:三居室
設計風格:中式
預算: 115萬

 

項目信息 / Project information
 

樓盤地址 /九闕府
 

項目麵積 / 套內142㎡
 

裝修風格 / 新中式

 

業主需求

The owner needs

1、希望匹配和小區一樣的中式風格

2、客廳大氣通透,餐廳與廚房能融合為一個整體,但互不影響使用需求。

 

原戶型缺點

Disadvantages of original house type

1、客廳麵積較小,需增加麵積。

2、一間臥室需要連接花園部分。

3、三代同堂居住收納空間需要增加。

 

 

戶型改動

Flat layout changes

1、將客廳和大陽台打通,客廳也顯得寬敞明亮。

2、廚房改成4扇大滑門,更通透大氣,空間更大;廚房增加了雜物間和隔斷高櫃,滿足儲存需求。

3、將臥室改為書房,書房到後花園打通做玻璃滑門,更方便;書房和客廳打通做鏤空隔斷,更通透。

 


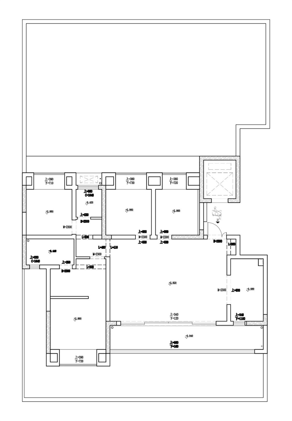
結構布局


平麵原始圖


平麵布置圖

實拍空間

入戶花園

入戶花園|煥然一新,歸心之家

整體造型采用園林借景設計,紅葉花藝的點綴,綠植端景的映襯,為空間更添一抹明麗的神采,生氣悠長。


餐廳空間
 



玄關 · 餐廳|悠然山水,動靜之間

空間的氛圍營造源自感性體驗,成就於理性把握。

入戶玄關的視覺點用景和物做隔斷,半開半合中將視線引向內部空間,餐廳使用木色與廚房空間氛圍為一體,餐桌上采用“清明上河圖”布飾加以山水瓶插花營造出大氣氛圍;暖色微醺的光源散漫折射照其上,撩撥平靜的心緒,蕩起一絲漣漪。明亮色彩的碰撞,傳遞中式意蘊及趣味的同時,激活味蕾的感知;絲綢布藝與盤扣的細節點綴,調和深木色的沉悶印象,內斂延綿。

客廳空間

 




 

客廳|內在山水,形影自成

客廳空間衍脈自深厚邈遠的傳統文化,從家具的形製、流線、色澤,到墨枝斜逸、山(shan)掩(yan)人(ren)家(jia)的(de)山(shan)水(shui)掛(gua)畫(hua),均(jun)鐫(juan)刻(ke)著(zhe)東(dong)方(fang)詩(shi)性(xing)的(de)肌(ji)理(li),流(liu)露(lu)出(chu)自(zi)信(xin)大(da)方(fang)的(de)悠(you)悠(you)風(feng)骨(gu)。融(rong)合(he)現(xian)代(dai)主(zhu)義(yi)的(de)簡(jian)約(yue)與(yu)傳(chuan)統(tong)東(dong)方(fang)的(de)形(xing)韻(yun),令(ling)空(kong)間(jian)沾(zhan)染(ran)著(zhe)雅(ya)秀(xiu)的(de)氣(qi)質(zhi),清(qing)淨(jing)有(you)格(ge)調(tiao)。
 


 

臥室空間
 




 

主臥|平靜之下,恬淡自得

主臥選用布設延續了素淨的色調,在木質、軟包材料的拚接下,加入畫幅上亮色點綴,增加了空間質感的豐富性。在方圓分寸之間,營造素雅間亦有潤質感的空間。

書房空間

 


 

書房|凝一室書香氣

書房少了人聲喧嘩,就多了自然的野趣與境界;晨光熹微與蛙鳴作伴,新林密語倚風聲連袂。清寂凝定的心境,凝活一份哲學的思考,一抹恬淡寡欲的東方藝術氣息。


花園空間
 

 

花園|翠色欲流 

尺度外,用中國園林借景、添景、框景、漏景等手法,增加迂回空間以豐富觀覽情趣。大量引光入室、引景入室,借助時間的流動、天光樹影的變化,產生無限生動的畫幅,與講究“移步換景”的山水畫異曲同工。有種 “山靜似太古,日長如小年” 的美好體驗。
 




 

端景處,設計將傳統中式元素解構,現代形製的精巧燈具,糅合東方意味的綿綿古意,無聲渲染出俊雅悠然的淡雅氛圍。

蒼鬆端景、茵茵苔蘚,與翻騰洶湧的浪花圖景,也一同自然而然地為東方情調添下幾筆注角,氤氳的雅韻縈繞而出。

 

上一篇:清暉時光
下一篇:璀璨天城(現代)
在線客服

關注新思路裝飾官方公眾號及時訂閱最新優惠資訊