璀璨天城(現代)介紹
Introduce
設計師詳情
Design details
楊磊
楊磊
性別:
畢業學院:
重大建築係
從業時間:
15年
現任職務:
設計總監
聯係方式:
門店:
南坪店
設計類別:
公裝設計和家裝設計
設計風格:
現代美式、美式輕奢、歐式風格、新中式、現代時尚等等
個人感悟:
生活是創意的來源,創意源於文化,創意源於自己
設計定位:
設計理念:
以有限空間、設計無限可能
作品榮譽:
龍湖紫雲台、約克郡、龍湖酈江、珊瑚水岸、恒大麓山湖、國盛園墅、逸翠莊園、同景國際城雍華府、華僑城、北大資源蘭亭序、南坪萬達咖啡館等
立即谘詢
璀璨天城(現代)
0
樓盤地址:璀璨天城
戶型:四居室
設計風格:現代
預算: 45萬

項目信息 / Project information

樓盤地址 /璀璨天城

項目麵積 / 套內145㎡

裝修風格 / 現代

業主需求
The owner needs
屋主是一個三世同堂的大家庭,對於新居,他們希望在滿足一家人各自生活需求的同時,又能擁有舒緩、安逸、滿足儲存空間的家。

戶型改動
Flat layout changes
為滿足屋主三世同堂的需求,設計師選擇現澆二樓作為主臥的使用,整麵牆的衣櫃滿足儲存需求,並按照屋主家裏老人居住的需求,將1樓單獨做出老人房的空間,現代風格致力打造三世同堂的理想家居。
 
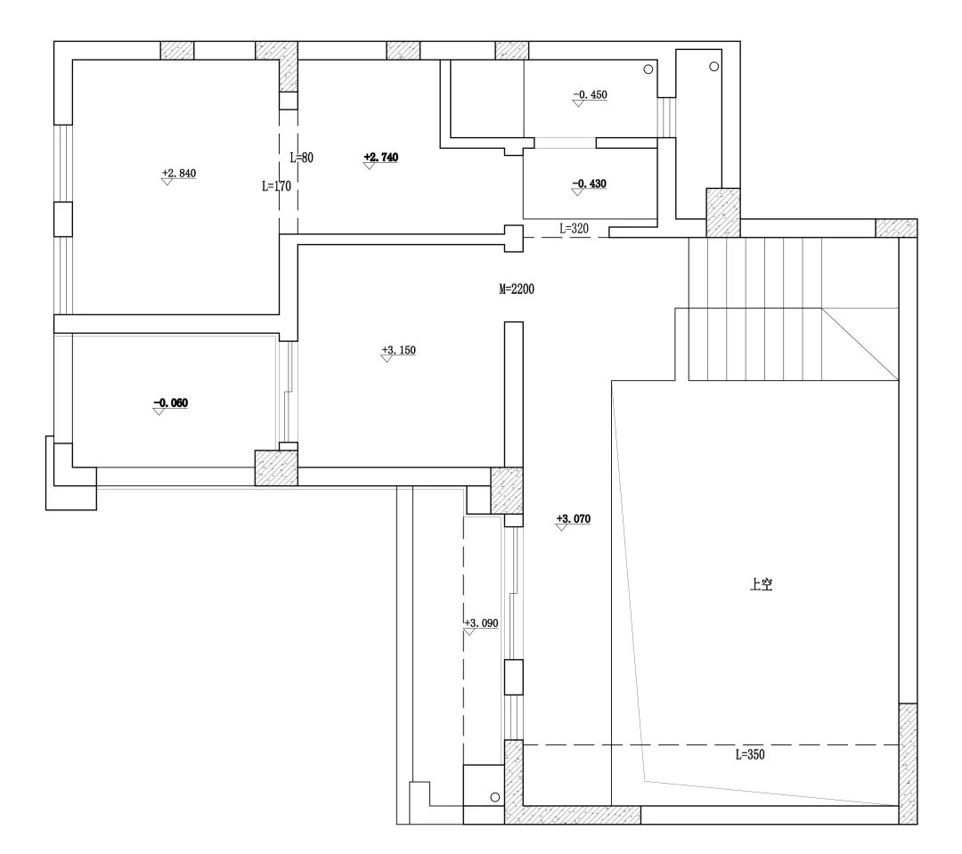
一層原始結構圖

一層平麵設計圖

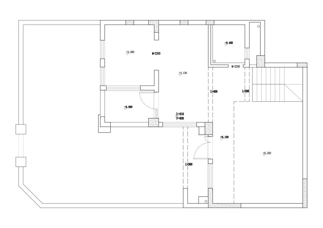
二層原始結構圖

二層設計平麵圖

 
入戶花園





生活中任何一個看似平凡的生活,隻要你願意澆灌理想與情懷,終會變為“詩和遠方的田野”屋(wu)主(zhu)十(shi)分(fen)喜(xi)愛(ai)自(zi)然(ran)。家(jia)裏(li)擁(yong)有(you)貓(mao)咪(mi)和(he)多(duo)肉(rou)植(zhi)物(wu),便(bian)在(zai)入(ru)戶(hu)花(hua)園(yuan)的(de)兩(liang)側(ce)設(she)置(zhi)了(le)植(zhi)物(wu)架(jia),放(fang)置(zhi)喜(xi)愛(ai)的(de)植(zhi)物(wu),花(hua)園(yuan)一(yi)抹(mo)豔(yan)麗(li)的(de)粉(fen)紅(hong),在(zai)任(ren)何(he)一(yi)個(ge)角(jiao)落(luo),都(dou)能(neng)體(ti)會(hui)到(dao)一(yi)家(jia)人(ren)悠(you)然(ran)自(zi)得(de)的(de)生(sheng)活(huo)態(tai)度(du)和(he)陽(yang)光(guang)般(ban)明(ming)媚(mei)的(de)心(xin)情(qing)感(gan)受(shou)。 

客廳實拍







zhenggekongjianyiwenrundeyanseweijidi,fuyicaizhiyuyansedepengzhuang,guangxianyukongjianhudong,yingzaochujianyueyouyaxiandaigetiao,kongjianshiguangyingderongqi,jinruketingquyuhouyingxiangdamiandenanxiangcaiguang,guangxiantouguochuanghuanhuanjinrushinei,zairouguangqingfuxiayingjierichangdexumu。tiaogaodekongjianliticengci,shixingzouqizhongdedongxiangengjiaziyoulinghuo。

餐廳實拍





餐(can)廳(ting)延(yan)續(xu)了(le)整(zheng)體(ti)空(kong)間(jian)的(de)主(zhu)色(se)調(tiao)和(he)線(xian)條(tiao)美(mei)感(gan),大(da)理(li)石(shi)餐(can)桌(zhuo)蓄(xu)意(yi)帶(dai)來(lai)一(yi)種(zhong)自(zi)然(ran)的(de)藝(yi)術(shu)氛(fen)圍(wei),在(zai)原(yuan)有(you)的(de)沉(chen)穩(wen)柔(rou)和(he)中(zhong)注(zhu)入(ru)新(xin)的(de)活(huo)力(li),素(su)色(se)的(de)皮(pi)革(ge)餐(can)椅(yi)打(da)造(zao)出(chu)舒(shu)適(shi)的(de)觸(chu)感(gan)。讓(rang)人(ren)全(quan)情(qing)地(di)投(tou)入(ru)生(sheng)活(huo),熱(re)愛(ai)生(sheng)活(huo)中(zhong)一(yi)食(shi)一(yi)飲(yin)的(de)歡(huan)愉(yu)。客(ke)廳(ting)與(yu)餐(can)廳(ting)開(kai)放(fang)式(shi)相(xiang)連(lian),整(zheng)體(ti)色(se)調(tiao)素(su)雅(ya)大(da)氣(qi),將(jiang)抽(chou)象(xiang)的(de)自(zi)然(ran)意(yi)象(xiang),化(hua)為(wei)簡(jian)約(yue)的(de)視(shi)覺(jiao)符(fu)號(hao);背景牆麵的藝術裝置,擁有琥珀色的溫暖氣息,帶來多維度的層次感;樸素、自然、溫暖,設計師以現代藝術演變空間圖案,讓人不經意間,總能感受到時間的沉澱。

臥室實拍




主(zhu)臥(wo)的(de)氛(fen)圍(wei)在(zai)柔(rou)和(he)的(de)線(xian)條(tiao)中(zhong)趨(qu)於(yu)平(ping)靜(jing),皮(pi)革(ge)與(yu)布(bu)藝(yi)的(de)使(shi)用(yong)柔(rou)化(hua)了(le)空(kong)間(jian)的(de)表(biao)情(qing),讓(rang)人(ren)倍(bei)感(gan)放(fang)鬆(song)。每(mei)當(dang)清(qing)晨(chen),光(guang)線(xian)透(tou)過(guo)窗(chuang)戶(hu)傾(qing)瀉(xie)而(er)入(ru),家(jia)便(bian)擁(yong)有(you)了(le)新(xin)的(de)心(xin)跳(tiao),每(mei)一(yi)寸(cun)空(kong)間(jian)都(dou)隨(sui)著(zhe)光(guang)影(ying)的(de)移(yi)動(dong)而(er)逐(zhu)漸(jian)蘇(su)醒(xing)。

書房實拍





沉(chen)穩(wen)的(de)書(shu)房(fang)在(zai)主(zhu)臥(wo)旁(pang)側(ce),深(shen)木(mu)色(se)獨(du)有(you)的(de)古(gu)韻(yun)沉(chen)浸(jin)在(zai)悠(you)然(ran)自(zi)在(zai)之(zhi)中(zhong),書(shu)房(fang)即(ji)可(ke)辦(ban)公(gong)也(ye)可(ke)以(yi)在(zai)沙(sha)發(fa)會(hui)客(ke)談(tan)心(xin),靈(ling)動(dong)開(kai)放(fang)的(de)布(bu)局(ju)與(yu)格(ge)調(tiao)生(sheng)活(huo)理(li)念(nian)相(xiang)融(rong)合(he),在(zai)注(zhu)重(zhong)秩(zhi)序(xu)與(yu)功(gong)能(neng)的(de)同(tong)時(shi)、平和、穩重的氣韻。


 
在線客服

關注新思路裝飾官方公眾號及時訂閱最新優惠資訊