【九龍花園東郡】三口之家的美式溫馨小屋
作者:admin  發布時間:2019-06-09
人生若是標點符號
它不會永無止境地追求一個目標
得到的都會劃上句號
失去的也將省略忘掉
什麼夢想誓言 都是浮雲
她隻屬於青春年少
                                                                        ——牧野《語數外中的人生》


『項目簡介』

樓盤地址:九龍花園東郡
項目戶型:三室二廳
戶型麵積:90m2
設計風格:美式風格
設計師:溫麗萍
 

『客戶簡介』


 
一yi對dui幸xing福fu恩en愛ai的de夫fu妻qi,一yi個ge沉chen迷mi搖yao滾gun音yin樂le的de少shao年nian,還hai有you一yi隻zhi可ke愛ai的de小xiao泰tai迪di妹mei妹mei,組zu成cheng了le這zhe個ge小xiao家jia庭ting。夫fu妻qi倆liang從cong事shi銷xiao售shou行xing業ye,早zao出chu晚wan歸gui,為wei了le幸xing福fu生sheng活huo奮fen鬥dou不bu息xi。帥shuai氣qi高gao大da的de兒er子zi在zai讀du高gao中zhong,對dui音yin樂le興xing趣qu很hen濃nong,正zheng學xue習xi架jia子zi鼓gu,夢meng想xiang是shi能neng夠gou創chuang建jian一yi支zhi搖yao滾gun樂le隊dui。
他們對新家的要求也很簡單:“三口之家,溫馨一點嘛。”
而(er)他(ta)們(men)也(ye)非(fei)常(chang)相(xiang)信(xin)設(she)計(ji)師(shi)的(de)設(she)計(ji)水(shui)平(ping),沒(mei)有(you)什(shen)麼(me)特(te)殊(shu)的(de)要(yao)求(qiu),留(liu)給(gei)我(wo)們(men)設(she)計(ji)師(shi)的(de)發(fa)揮(hui)空(kong)間(jian)很(hen)大(da)。在(zai)綜(zong)合(he)了(le)他(ta)們(men)的(de)意(yi)見(jian)後(hou),我(wo)們(men)決(jue)定(ding)使(shi)用(yong)美(mei)式(shi)的(de)裝(zhuang)修(xiu)風(feng)格(ge),最(zui)後(hou)裝(zhuang)修(xiu)的(de)成(cheng)品(pin)客(ke)戶(hu)也(ye)表(biao)示(shi)非(fei)常(chang)滿(man)意(yi),符(fu)合(he)預(yu)期(qi)。


 
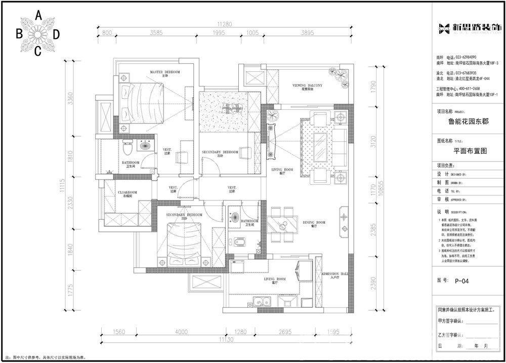
『戶型介紹』
 
詢(xun)問(wen)客(ke)戶(hu)意(yi)見(jian)後(hou),他(ta)們(men)都(dou)認(ren)為(wei)沒(mei)必(bi)要(yao)對(dui)戶(hu)型(xing)有(you)大(da)的(de)改(gai)動(dong),我(wo)們(men)便(bian)也(ye)沒(mei)有(you)將(jiang)戶(hu)型(xing)做(zuo)出(chu)大(da)改(gai),隻(zhi)是(shi)把(ba)原(yuan)本(ben)獨(du)立(li)的(de)衣(yi)帽(mao)間(jian)並(bing)入(ru)主(zhu)臥(wo)好(hao)方(fang)便(bian)換(huan)衣(yi)服(fu),愛(ai)美(mei)的(de)女(nv)主(zhu)人(ren)對(dui)此(ci)很(hen)滿(man)意(yi)。不(bu)過(guo)對(dui)於(yu)其(qi)中(zhong)一(yi)個(ge)次(ci)臥(wo)設(she)計(ji)時(shi),因(yin)為(wei)家(jia)中(zhong)常(chang)住(zhu)人(ren)口(kou)隻(zhi)有(you)他(ta)們(men)三(san)個(ge),不(bu)用(yong)專(zhuan)門(men)的(de)客(ke)房(fang),所(suo)以(yi)他(ta)們(men)的(de)兒(er)子(zi)要(yao)求(qiu)將(jiang)屋(wu)子(zi)做(zuo)成(cheng)音(yin)樂(le)練(lian)習(xi)室(shi),滿(man)足(zu)練(lian)習(xi)架(jia)子(zi)鼓(gu)的(de)需(xu)求(qiu)。

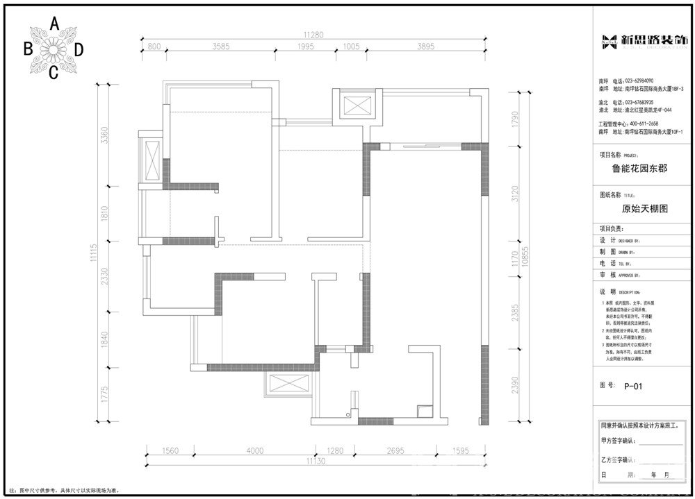
原始結構圖
平麵布置圖

『客廳展示』
 
因yin為wei想xiang營ying造zao出chu美mei式shi風feng格ge中zhong的de複fu古gu曆li史shi感gan,所suo以yi我wo們men選xuan取qu了le顏yan色se很hen深shen的de琉liu璃li綠lv色se打da造zao整zheng體ti牆qiang麵mian,客ke廳ting再zai用yong深shen淺qian不bu同tong的de墨mo綠lv色se係xi與yu深shen棕zong色se係xi來lai進jin行xing裝zhuang飾shi。
沙發背景牆使用石膏線材勾畫幾何圖形,古典優雅;陶(tao)瓷(ci)的(de)小(xiao)鹿(lu)漫(man)步(bu)花(hua)間(jian),野(ye)趣(qu)橫(heng)生(sheng)。複(fu)古(gu)花(hua)色(se)的(de)窗(chuang)簾(lian)與(yu)真(zhen)皮(pi)質(zhi)地(di)的(de)沙(sha)發(fa)以(yi)及(ji)實(shi)木(mu)電(dian)視(shi)櫃(gui)搭(da)配(pei)起(qi)來(lai)正(zheng)合(he)適(shi),線(xian)條(tiao)分(fen)割(ge)成(cheng)菱(ling)形(xing)網(wang)格(ge)狀(zhuang)的(de)乳(ru)白(bai)色(se)電(dian)視(shi)背(bei)景(jing)牆(qiang)大(da)方(fang)低(di)調(tiao),黃(huang)銅(tong)色(se)美(mei)式(shi)吊(diao)燈(deng)幹(gan)淨(jing)明(ming)亮(liang)。深(shen)墨(mo)綠(lv)色(se)的(de)織(zhi)錦(jin)桌(zhuo)旗(qi)無(wu)形(xing)中(zhong)又(you)添(tian)了(le)點(dian)奢(she)華(hua)意(yi)味(wei),油(you)青(qing)色(se)的(de)仿(fang)古(gu)裝(zhuang)飾(shi)擺(bai)件(jian)也(ye)是(shi)非(fei)常(chang)經(jing)典(dian)的(de)美(mei)式(shi)元(yuan)素(su)體(ti)現(xian)。


客廳-茶幾與電視牆


客廳-窗簾與沙發




客廳-沙發與背景牆


客廳-整體



『餐廳展示』
    餐(can)廳(ting)風(feng)格(ge)與(yu)客(ke)廳(ting)保(bao)持(chi)一(yi)致(zhi)。實(shi)木(mu)餐(can)桌(zhuo)不(bu)太(tai)大(da),恰(qia)好(hao)夠(gou)一(yi)家(jia)三(san)口(kou)結(jie)束(shu)忙(mang)碌(lu)的(de)一(yi)天(tian)後(hou)共(gong)進(jin)溫(wen)馨(xin)的(de)晚(wan)餐(can)。牆(qiang)上(shang)壁(bi)畫(hua)麵(mian)積(ji)比(bi)較(jiao)大(da),有(you)效(xiao)避(bi)免(mian)了(le)牆(qiang)麵(mian)缺(que)少(shao)裝(zhuang)飾(shi)而(er)顯(xian)得(de)過(guo)於(yu)空(kong)曠(kuang)的(de)問(wen)題(ti),整(zheng)體(ti)顏(yan)色(se)也(ye)與(yu)房(fang)間(jian)搭(da)配(pei)合(he)適(shi)。滑(hua)門(men)開(kai)關(guan)自(zi)如(ru),輕(qing)鬆(song)隔(ge)開(kai)廚(chu)房(fang)與(yu)餐(can)廳(ting),杜(du)絕(jue)做(zuo)“重口味”飯菜時造成的油煙困擾。



餐廳


餐廳-客廳


餐廳-餐桌


『廚房展示』
    chufangzaotaishiyongbaisedalishicaizhidazao,liaolitaideshejigengfangbianshiwudezhizuo。chuguiyanseyexuanquletongsexidebaise,qingxinganjing,rangbenshiyouyanmanmandechufangshijiaoshangkanqilaimingliangzhengjie。

廚房



廚房-灶台與料理台

『主臥展示』
在衣帽間並入主臥後,臥室不用再設計衣櫃的位置,隻剩下床和簡單的家具。那麼如果想要整體格調升華,就要通過家具品質來提升。
shensemuzhijiajuyufugufengdezhuangshizhengshimeishizhuangxiufenggedeliangdianzhiyi,shenqingsedepizhichuangtouyuqiangmiansexixiangtongyi。weishengjiandeyugangshejifeichangshihexiuxizhishifangsongpaozao,zhuozishangdeshangyongshenghuayupenzaidianzhuifangjian,shengjibobo。

 
主臥-整體


主臥-盆栽


主臥-床


衛生間-浴缸


主臥-衣帽間、床



『次臥展示』
 
次(ci)臥(wo)是(shi)帥(shuai)氣(qi)兒(er)子(zi)的(de)房(fang)間(jian)。學(xue)生(sheng)難(nan)免(mian)書(shu)籍(ji)和(he)雜(za)物(wu)較(jiao)多(duo),床(chuang)鋪(pu)采(cai)用(yong)榻(ta)榻(ta)米(mi)的(de)設(she)計(ji)更(geng)便(bian)於(yu)物(wu)品(pin)收(shou)納(na),長(chang)條(tiao)形(xing)的(de)書(shu)桌(zhuo)在(zai)擺(bai)放(fang)電(dian)腦(nao)後(hou)仍(reng)留(liu)有(you)許(xu)多(duo)空(kong)間(jian)。書(shu)架(jia)近(jin)在(zai)咫(zhi)尺(chi),手(shou)邊(bian)是(shi)舊(jiu)式(shi)磁(ci)帶(dai)播(bo)放(fang)器(qi),心(xin)愛(ai)的(de)架(jia)子(zi)鼓(gu)就(jiu)在(zai)身(shen)後(hou),音(yin)樂(le)夢(meng)想(xiang)和(he)學(xue)習(xi)並(bing)不(bu)衝(chong)突(tu),小(xiao)小(xiao)的(de)空(kong)間(jian)滿(man)載(zai)的(de)是(shi)青(qing)春(chun)的(de)律(lv)動(dong)。

次臥-整體


次臥-床、書桌


//
夢想的距離很長
回家的路途很短
不管為夢奔走再遠
家都是每個人心靈的港灣
新思路裝飾真誠提供服務
滿足您對家的一切美好想象

 
 
在線客服

關注新思路裝飾官方公眾號及時訂閱最新優惠資訊