魯能領秀城(現代風格)介紹
Introduce
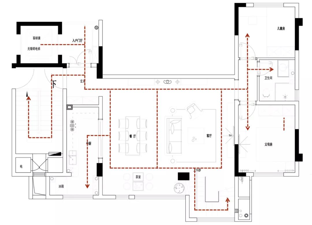
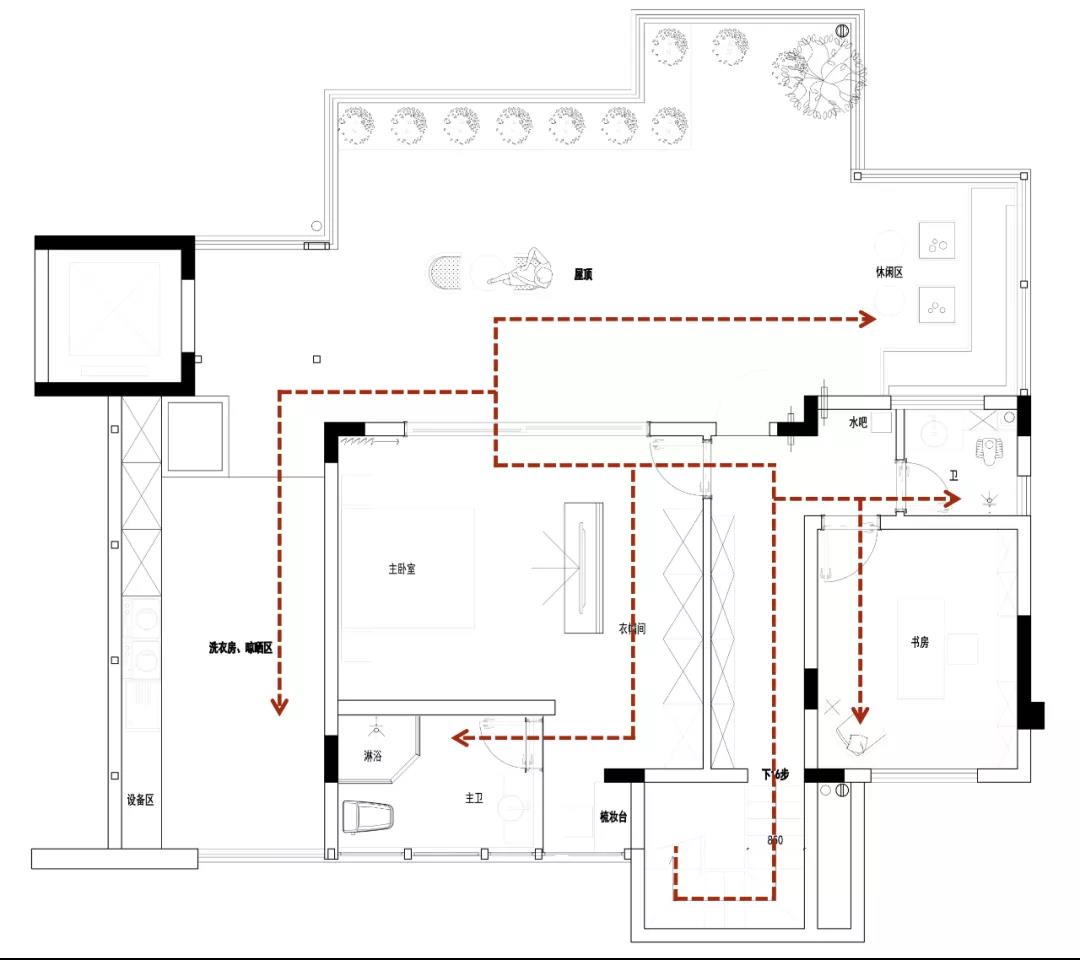
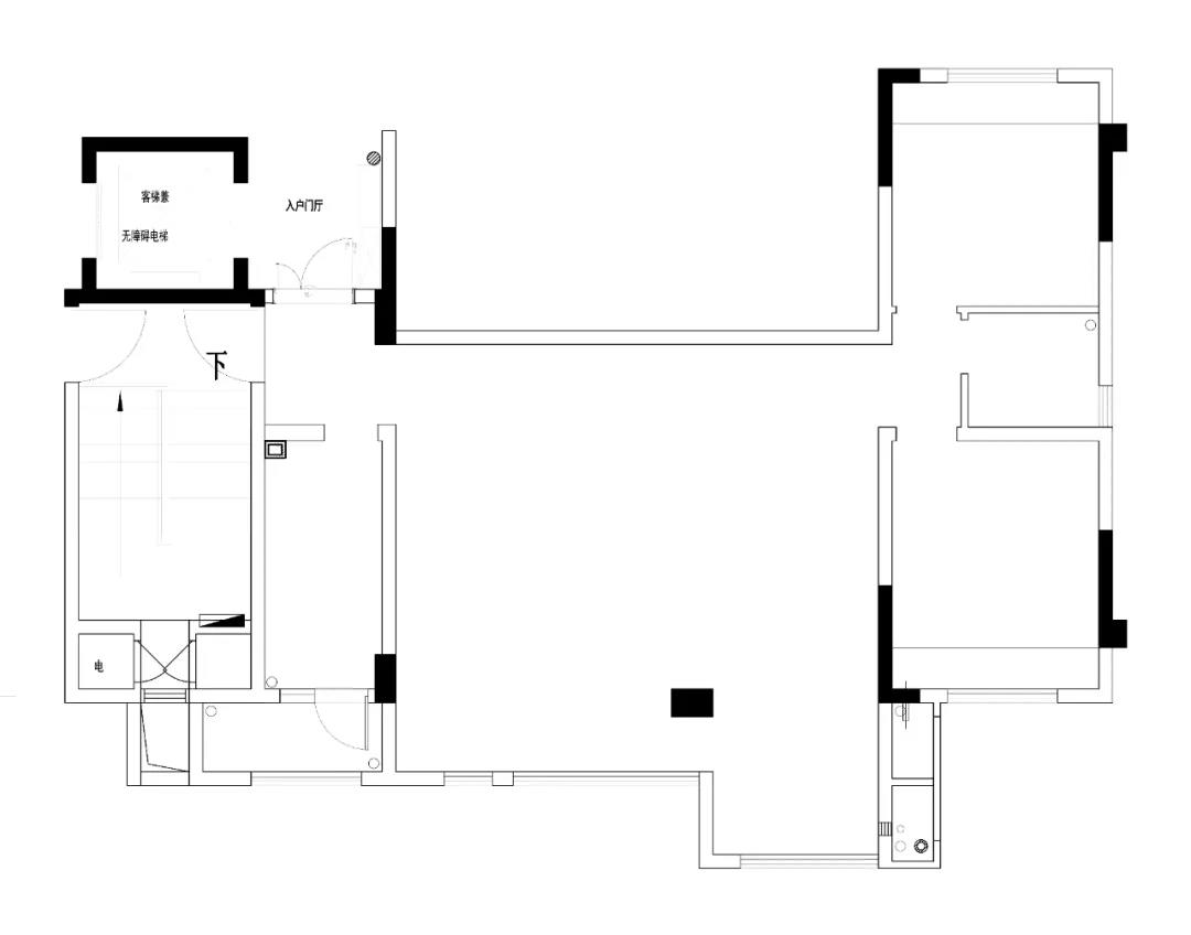
二樓原始平麵圖 二樓平麵動線圖 一樓原始平麵圖 一樓平麵動線圖 會客廳 陽台 餐廳 樓梯間 主臥 衣帽間 主衛
設計師詳情
Design details
楊絮
楊絮
性別:
畢業學院:
四川美術學院
從業時間:
16年
現任職務:
設計總監
聯係方式:
門店:
南坪設計中心
設計類別:
公裝設計和家裝設計
設計風格:
美式鄉村、藍色地中海、新古典、後現代、中式、歐式及現代歐式等
個人感悟:
永遠對生活充滿激情,對事物有著敏銳的洞察力,我喜歡這樣的生活狀態!
設計定位:
設計理念:
設計關鍵在於優美地解決業主提出的問題,對美的感受能力,對功能適應性實用性!!
作品榮譽:
龍湖源著、東原香山、龍湖睿城、珊瑚水岸、西政天高鴻苑、珊瑚水岸、慶隆高爾夫·鑽石島、天域嘉玲、南嶺雅舍、銀河證券、龍騰汽車4S店等
立即谘詢
魯能領秀城(現代風格)
0
樓盤地址:魯能領秀城
戶型:別墅
設計風格:現代
預算:






 

二樓·原始平麵圖

 

 
 

二樓·平麵動線圖

 



 

一樓·原始平麵圖

 

一樓·平麵動線圖

 














 

會客廳







 

陽台

 







 

餐廳

 





 

樓梯間

 









 

主臥





衣帽間



 

主衛




 

 
 
在線客服

關注新思路裝飾官方公眾號及時訂閱最新優惠資訊