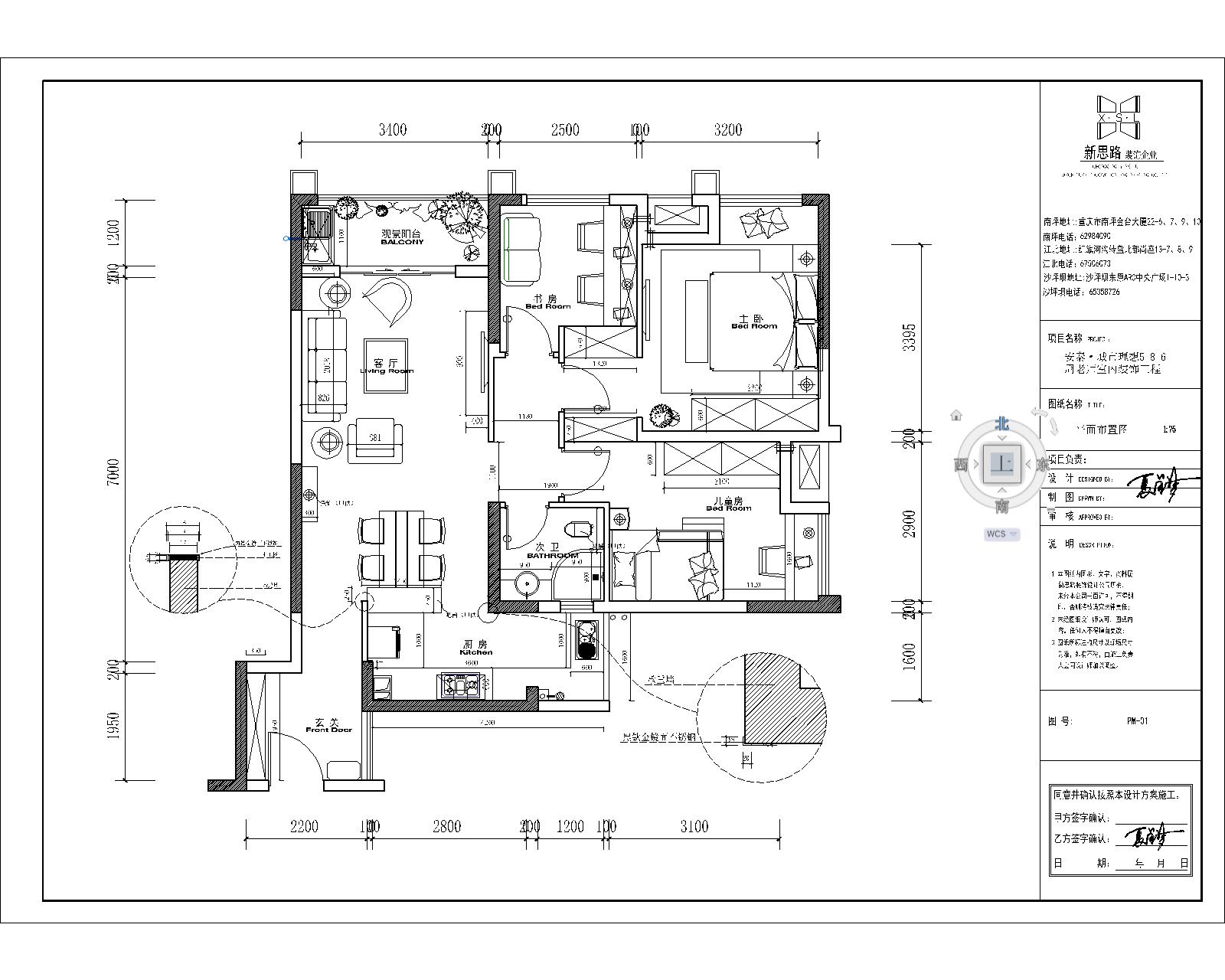
安泰城市理想介紹
Introduce
安泰城市理想
設計師詳情
Design details
安泰城市理想
0
樓盤地址:安泰城市理想
戶型:
設計風格:
預算:













在線客服

關注新思路裝飾官方公眾號及時訂閱最新優惠資訊