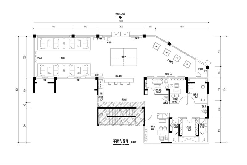
廣西德能•盛世靖城售房部介紹
Introduce
設計師詳情
Design details
廣西德能•盛世靖城售房部
0
樓盤地址:廣西靖西縣
公裝分類:汽車、服裝、公共空間類
預算: 95萬
訪問次數:2488
在線客服

關注新思路裝飾官方公眾號及時訂閱最新優惠資訊