香港3861國際母嬰生活館(融僑店)介紹
Introduce
設計師詳情
Design details
楊絮
楊絮
性別:
畢業學院:
四川美術學院
從業時間:
16年
現任職務:
設計總監
聯係方式:
門店:
南坪設計中心
設計類別:
公裝設計和家裝設計
設計風格:
美式鄉村、藍色地中海、新古典、後現代、中式、歐式及現代歐式等
個人感悟:
永遠對生活充滿激情,對事物有著敏銳的洞察力,我喜歡這樣的生活狀態!
設計定位:
設計理念:
設計關鍵在於優美地解決業主提出的問題,對美的感受能力,對功能適應性實用性!!
作品榮譽:
龍湖源著、東原香山、龍湖睿城、珊瑚水岸、西政天高鴻苑、珊瑚水岸、慶隆高爾夫·鑽石島、天域嘉玲、南嶺雅舍、銀河證券、龍騰汽車4S店等
立即谘詢
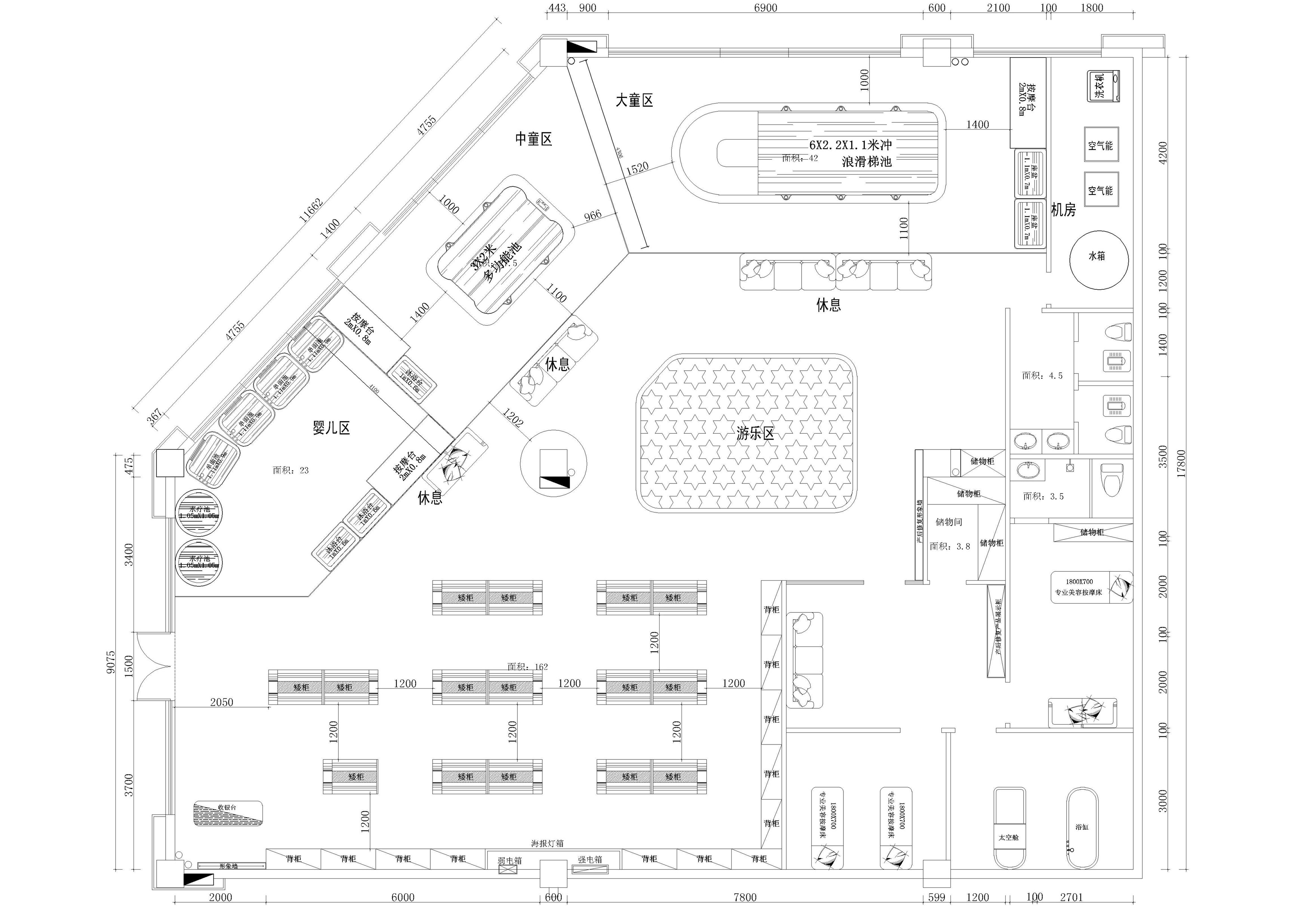
香港3861國際母嬰生活館(融僑店)
0
樓盤地址:金輝城融僑店
公裝分類:辦公空間類
預算:
訪問次數:3972




















在線客服

關注新思路裝飾官方公眾號及時訂閱最新優惠資訊