
人間的是是非非

·項目信息·
項目地址:棕櫚泉悅江國際
項目麵積:180㎡
設計風格:新中式
常住人口:3-5人
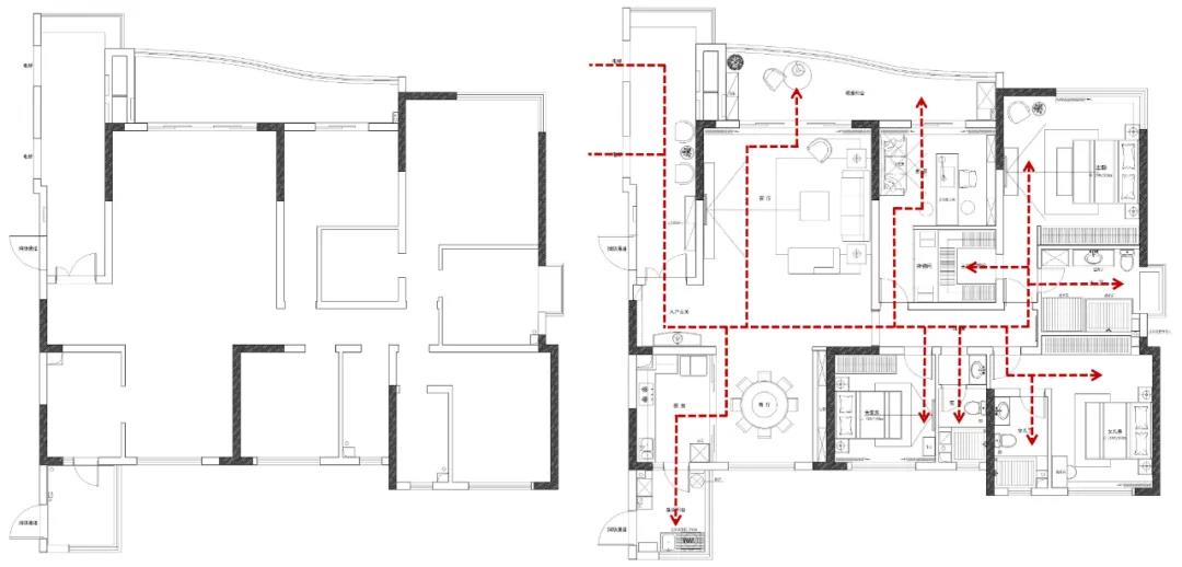
·項目詳解·


·案例賞析·

·客廳·
客廳設計上采用濃厚的新中式元素,不論是牆麵的山水畫、還是線條勾勒如窗欞的花紋裝飾,無一不透露著中式獨有的詩畫韻味。電視牆采用大理石花紋,靈動自然、奢華尊貴,再加以盤虯盆栽,打造出極富古典氣息的空間氣質。

·茶室·
獨立茶室既是待客休閑之所,也能作書房之用。仿古典櫃體的設計與山水式吊燈映襯,室內空間嫻靜雅致,恍惚已有茶香滿室。

·餐廳·
餐can邊bian櫃gui的de設she計ji,利li於yu物wu品pin的de擺bai放fang和he存cun取qu。上shang方fang櫃gui體ti門men透tou明ming,既ji能neng做zuo收shou納na之zhi用yong,也ye能neng作zuo酒jiu櫃gui展zhan示shi之zhi用yong。與yu整zheng體ti風feng格ge相xiang符fu合he的de圓yuan形xing餐can桌zhuo,再zai次ci點dian名ming新xin中zhong式shi的de主zhu題ti,更geng表biao達da了le傳chuan統tong文wen化hua中zhong對dui“團圓”的期待。

·廚房·
廚房操作台做L型設計,動線流暢,寬敞便捷。生活陽台與之連通,相對擴寬廚房的適用範圍。家電配備齊全,烘焙、烤製都不在話下。

·臥室·
臥室整體去除複雜的設計元素,精準提煉最能表達風格的顏色,以灰綠、灰白、米色等低飽和度的色調進行搭配,打造出素雅簡潔、又頗有中式風韻的休憩空間。


主臥及主衛·
zhuwochuangtoushanshuihuazaicidianmingxinzhongshizhuti,shenzongseqiangmianyubaiseqiangmianzhonghe,houzhongyebushipiaoyi。wuzhudengshejirangshineiguangxiangengjiarouhe,zhurenzaicixiuxishuimiantiyangenghao。weishengjianzuoganshifenli,bianyubaochiqingjie,linyushizuofanghuasheji,xiaoxijiehenzhongyao。
·項目信息·
項目地址:棕櫚泉悅江國際
項目麵積:180㎡
設計風格:新中式
常住人口:3-5人
·項目詳解·